Codice V001197 - Bolgare - PRESTIGIOSO SPAZIO COMMERCIALE / UFFICIO DI RAPPRESENTANZA
    In una posizione strategica, con affacci sulla statale di forte passaggio, proponiamo un ampio immobile commerciale/ufficio di 155 MQ, situato al primo piano servito da ascensore.
    Una soluzione che coniuga praticità, visibilità e un grande potenziale espressivo per chi desidera far crescere la propria attività in un ambiente che sappia raccontarla al meglio.

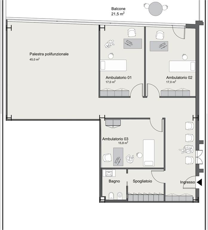
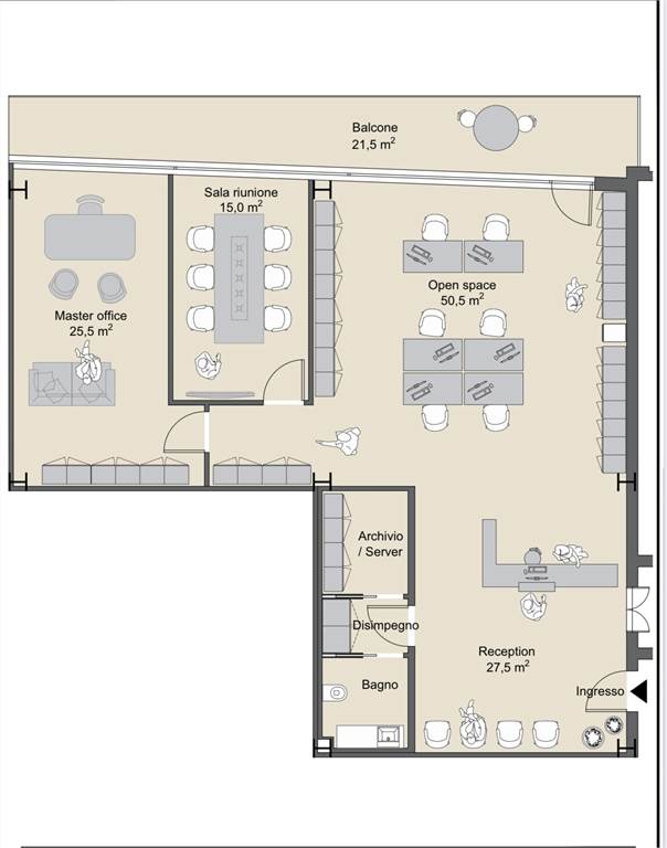
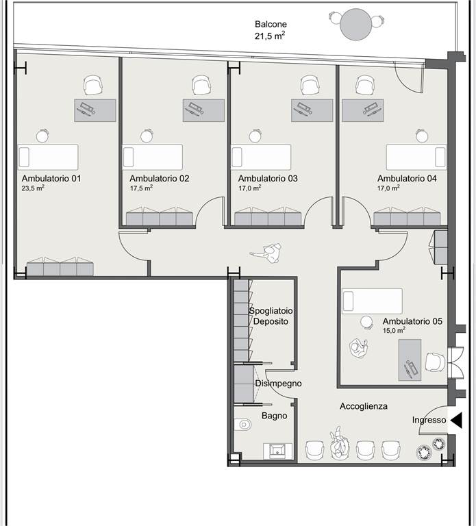
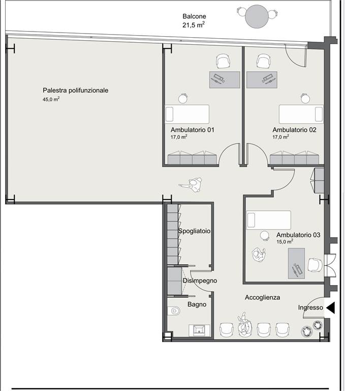
    Gli spazi, grazie alla loro ampia metratura e alla naturale luminosità, si prestano perfettamente come sede di rappresentanza, showroom, studio professionale, poliambulatorio o uffici direzionali.
    Il contesto è valorizzato da un ampio parcheggio, ideale per garantire comfort e accessibilità alla clientela.
    È inoltre disponibile un locale deposito opzionale al piano tera.

    Attualmente al rustico, l’immobile offre la possibilità di modellare gli ambienti secondo le proprie esigenze:
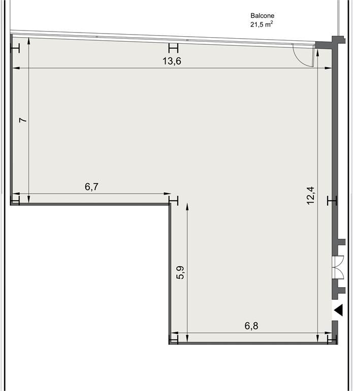
    📐 sono disponibili diverse proposte di suddivisione interna, consultabili nelle planimetrie-immagini allegate.
    Una vera opportunità per dar vita a uno spazio che rispecchi appieno la propria identità professionale.

    Per chi desidera entrare direttamente nel futuro della propria attività, è disponibile anche la consegna “chiavi in mano”, con affiancamento di un architetto dedicato che accompagnerà passo a passo nella scelta delle finiture e nella personalizzazione degli spazi.

    Un luogo dove funzionalità e immagine si incontrano, pronto a diventare il tuo nuovo punto di forza.

    Per info e appuntamenti contatta Ca’ de Conti srl telefonicamente o whatsappa 035 833562
    • Città
      Bolgare
    • Prezzo
      148.000 EUR
    • Classe
      A4
    • Locali
      1
    • Metri quadri
      155
    • mq Terrazzo
      21

    Richiedi informazioni

    • Autorizzo il trattamento dei miei dati personali in base Regolamento UE n. 679/2016 - Privacy Policy
    • Invia