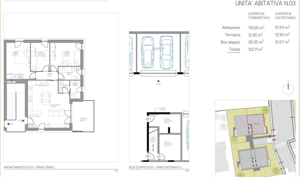
Codice V001203 - Calcinate - Quadrilocale con terrazza coperta
    Elegante soluzione 4 locali con ampia zona giorno: open space di 41 mq calpestabili con salone e cucina oltre a ampia terrazza coperta, 3 camere da letto, 2 bagni-lavanderia, box doppio in larghezza al piano interrato.

    DOTAZIONI INCLUSE NEL PREZZO:
    - pompa di calore aria/acqua con pannelli radianti a pavimento distribuiti in tutta la casa;
    - predisposizione per l’installazione di split idronici sia in zona giorno che nelle camere;
    - sistema di ventilazione meccanica decentralizzata con scambiatore entalpico ad alta efficienza integrato nei serramenti, che garantisce ricambio d’aria costante con recupero di calore e filtrazione degli inquinanti, senza necessità di scarico condensa;
    - tapparelle oscuranti in PVC con motorizzazione elettrica;
    - predisposizione impianto di allarme;
    - portoncino d’ingresso blindato e coibentato;
    - impianto fotovoltaico della potenza di 3,00 kW;
    -affiancamento architetto d'interni per personalizzazioni e studio arredo su misura.
    • Città
      Calcinate
    • Prezzo
      291.000 EUR
    • Classe
      A4
    • Locali
      4
    • Metri quadri
      132,2
    • Mq Box
      34,5
    • mq Terrazzo
      13
    • Stato Immobile
      In Costruzione
    • Grado
      Signorile
    • Panorama
      Vista Aperta
    • Piano
      Primo
    • Orientamento
      Est Sud Ovest
    • Totale Piani
      Due
    • Lati Liberi
      3
    • Tipo Soggiorno
      Doppio
    • Tipo Cucina
      A Vista
    • Riscaldamento
      Autonomo
    • Tipo Riscaldam.
      Caldaia
    • Tipo Impianto
      Pavimento
    • Fonte Energetica
      Fotovoltaico
    • Acqua Calda
      Autonoma

    Richiedi informazioni

    • Autorizzo il trattamento dei miei dati personali in base Regolamento UE n. 679/2016 - Privacy Policy
    • Invia